Veröffentlicht: 29. März 2012
Kategorie: Fachartikel
Störungen, deren Ursprung außerhalb des NS-Netzes liegen
Tellurische Ströme
Es handelt sich um Ströme mit einer Frequenz unter 50 Hz, die eine Folge von Sonnenmagnetstürmen sind. Sie fließen in der tiefen Erde. Sie können die Schutzeinrichtungen der Übertragungsleitungen stören, wirken sich jedoch auf Stufe der nicht sehr weitreichenden NS-Netze nicht aus, insbesondere wenn diese nur einen Erder haben.
Vagabundierende 50-Hz-Erdströme
Solche Ströme treten bei Isolationsfehlern in mit über eine Impedanz geerdetem Sternpunkt betriebenen MSoder HS-Netzen auf, jedoch auch bei gewissen elektrischen Traktionsanlagen, wo der Rückstrom durch die Erde fließt. Somit ist bei NS-Anlagen in der Nähe von solchen Anlagen Vorsicht geboten. Sie können geographisch verteilte Schwachstromsysteme über die gemeinsame Impedanz stören, wenn sie keine einheitliche Potentialreferenz (mehrere Erder) haben. Es muss darauf hingewiesen werden, dass die vagabundierenden Ströme eine Ursache dafür waren, die fehlerspannungsempfindlichen Erdungsschutzrelais aufzugeben.
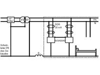
Überschlagströme in MS/NS-Transformatoren
Deren Stärke hängt vom Erdungsschema des MS-Netzes ab. Ihre Wirkung (Überspannung) hängt von der Zusammenschaltung der Körper der NS-Verbraucher mit dem Erder des Sternpunktes ab (siehe Abb. 1). Deshalb muss im Schema TT, um einen Durchschlag der NS-Betriebsmittel zu verhindern, der Widerstand Rb kleiner sein als

Zu bemerken ist, dass in der Publikation IEC 364 2U + 1000 V für TT und TN durch U + 1200 V ersetzt ist, und für IT Abb. 1: Mit MS-NS-Überschlägen im Transformator verbundene Gefahren. durch U√3 + 1200V. Ferner bestimmt sie, dass diese Überspannung nicht länger als 5 Sekunden dauern darf. Im Schema TN muss, um die Gefahr eines "indirekten Berührens" zu vermeiden, im Gebäude ein totaler Potentialausgleich bestehen. Dasselbe gilt für IT, wenn der Überspannungsableiter anspricht (Kurzschluss), wenn Rb und Ra miteinander verbunden sind.
Schaltüberspannungen im MS-Netz
Vom MS-Netz herrührende Überspannungen werden infolge des schmalen Durchlassbereichs (für innere Überspannungen) des MS/NSTransformators stark abgeschwächt. Ihre eventuellen Auswirkungen sind unabhängig vom Erdungsschema der NS-Anlage.
Oberwellenspannungen
Das MS-Netz wird durch Oberwellenerzeuger bei den diversen Abonnenten gestört. Daraus ergibt sich eine Deformation der Wellenform der Spannung auf der MS- und damit auch der NS-Seite. Die NS-Verbraucher eines nicht störenden Abonnenten nehmen somit Oberwellenströme auf, wobei auch die Ströme deformiert sind, die das Resultat eines Isolationsfehlers sind. Die Elektrizitätsversorgungsunternehmen sind heute über die Verschlechterung der Wellenform der MS stark besorgt, und dies, obschon Stern- Dreieck-Transformatoren (Dy11) keine Oberwellen 3. Ordnung und höher von der NS auf die MS übertragen ... Die Tabelle der Abbildung 2 zeigt die von der Electricité de France maximal zugelassenen Oberwellenstörpegel. Die Norm EN 50 160 nennt außer für H3 und ihre Mehrfache dieselben Werte. Es sei daran erinnert, dass:

In privaten NS-Netzen kann häufig ein wesentlich höherer Gehalt an Oberwellenspannungen und -strömen beobachtet werden.
Es handelt sich um Ströme mit einer Frequenz unter 50 Hz, die eine Folge von Sonnenmagnetstürmen sind. Sie fließen in der tiefen Erde. Sie können die Schutzeinrichtungen der Übertragungsleitungen stören, wirken sich jedoch auf Stufe der nicht sehr weitreichenden NS-Netze nicht aus, insbesondere wenn diese nur einen Erder haben.
Vagabundierende 50-Hz-Erdströme
Solche Ströme treten bei Isolationsfehlern in mit über eine Impedanz geerdetem Sternpunkt betriebenen MSoder HS-Netzen auf, jedoch auch bei gewissen elektrischen Traktionsanlagen, wo der Rückstrom durch die Erde fließt. Somit ist bei NS-Anlagen in der Nähe von solchen Anlagen Vorsicht geboten. Sie können geographisch verteilte Schwachstromsysteme über die gemeinsame Impedanz stören, wenn sie keine einheitliche Potentialreferenz (mehrere Erder) haben. Es muss darauf hingewiesen werden, dass die vagabundierenden Ströme eine Ursache dafür waren, die fehlerspannungsempfindlichen Erdungsschutzrelais aufzugeben.
Überschlagströme in MS/NS-Transformatoren
Deren Stärke hängt vom Erdungsschema des MS-Netzes ab. Ihre Wirkung (Überspannung) hängt von der Zusammenschaltung der Körper der NS-Verbraucher mit dem Erder des Sternpunktes ab (siehe Abb. 1). Deshalb muss im Schema TT, um einen Durchschlag der NS-Betriebsmittel zu verhindern, der Widerstand Rb kleiner sein als
Zu bemerken ist, dass in der Publikation IEC 364 2U + 1000 V für TT und TN durch U + 1200 V ersetzt ist, und für IT Abb. 1: Mit MS-NS-Überschlägen im Transformator verbundene Gefahren. durch U√3 + 1200V. Ferner bestimmt sie, dass diese Überspannung nicht länger als 5 Sekunden dauern darf. Im Schema TN muss, um die Gefahr eines "indirekten Berührens" zu vermeiden, im Gebäude ein totaler Potentialausgleich bestehen. Dasselbe gilt für IT, wenn der Überspannungsableiter anspricht (Kurzschluss), wenn Rb und Ra miteinander verbunden sind.
Schaltüberspannungen im MS-Netz
Vom MS-Netz herrührende Überspannungen werden infolge des schmalen Durchlassbereichs (für innere Überspannungen) des MS/NSTransformators stark abgeschwächt. Ihre eventuellen Auswirkungen sind unabhängig vom Erdungsschema der NS-Anlage.
Oberwellenspannungen
Das MS-Netz wird durch Oberwellenerzeuger bei den diversen Abonnenten gestört. Daraus ergibt sich eine Deformation der Wellenform der Spannung auf der MS- und damit auch der NS-Seite. Die NS-Verbraucher eines nicht störenden Abonnenten nehmen somit Oberwellenströme auf, wobei auch die Ströme deformiert sind, die das Resultat eines Isolationsfehlers sind. Die Elektrizitätsversorgungsunternehmen sind heute über die Verschlechterung der Wellenform der MS stark besorgt, und dies, obschon Stern- Dreieck-Transformatoren (Dy11) keine Oberwellen 3. Ordnung und höher von der NS auf die MS übertragen ... Die Tabelle der Abbildung 2 zeigt die von der Electricité de France maximal zugelassenen Oberwellenstörpegel. Die Norm EN 50 160 nennt außer für H3 und ihre Mehrfache dieselben Werte. Es sei daran erinnert, dass:
In privaten NS-Netzen kann häufig ein wesentlich höherer Gehalt an Oberwellenspannungen und -strömen beobachtet werden.
Blitzspannungen und -ströme
Bei einem direkten oder indirekten Blitzschlag in die Freileitung, die eine MS/NS-Station speist, begrenzen die an der MS-Einspeisung des Station angeordneten Überspannungsableiter die Spannnungswelle und leiten den Blitzstrom ab (siehe Technisches Heft Nr. 168).
Die äußere Spannungswelle gelangt über die Streukapazitäten zwischen den MS- und NS-Wicklungen in die NSWicklungen des Transformators. Diese Welle, deren Höchstwert nur selten 6 kV übersteigt, erscheint gleichzeitig an allen aktiven Leitern. Die Erdung des Sternpunktes (direkt im Schema TT und TN oder über einen Überspannungsableiter im Schema IT) kann nur die am Sternpunkt auftretende Spannung abschwächen und bewirkt eine innere Überspannung (zwischen Sternpunkt und Phasenleitern). Wenn eine Überspannungsgefahr besteht, wird deshalb dringend empfohlen, unabhängig vom Erdungsschema zwischen allen aktiven Leitern und Erde Überspannungableiter anzuordnen (siehe Technisches Heft Nr. 179). Die Verbindungen müssen möglichst kurz sein:
und tm die Anstiegszeit des Stroms ist. Die Ableitung des Blitzstroms gegen Erde erzeugt im NS-Netz ähnlich wie beim Transformatorüberschlag (siehe Abb. 1) Überspannungen, wobei jedoch infolge der Streukapazitäten innerhalb des Netzes nach und nach eine Abschwächung erfolgt. Es sei daran erinnert, dass für elektrische Betriebsmittel die folgenden vier Bemessungsstossspannungsfestigkeiten definiert sind (Prüfung mit der Wellenform 1,2/50 ms):
1,5 – 2,5 – 4 und 6 kV.
HF-Störungen
Außer den Blitzschlägen erzeugen Radio- und Fernsehsender, Handys und andere Funkgeräte dauernd oder vorübergehend elektromagnetische Felder. Normale oder Kurzschluss- Schaltvorgänge von Schaltgeräten erzeugen elektromagnetische Impuls- Felder. So sind beispielsweise in einem Abstand von 1 m von einer MS-Zelle entfernt Feldstärken von 40 kV/m gemessen worden.
Dauernde, vorübergehende oder Impuls-Felder wirken sich aufgrund des Antennen- oder Schleifeneffektes als Störspannungen aus, die unabhängige elektronische Geräte (wenn deren Unempfindlichkeit ungenügend ist) sowie miteinander verbundene elektronische Systeme, wenn die Schwachstromverbindungen schlecht erstellt sind, stören oder sogar beschädigen können.
Bei einem direkten oder indirekten Blitzschlag in die Freileitung, die eine MS/NS-Station speist, begrenzen die an der MS-Einspeisung des Station angeordneten Überspannungsableiter die Spannnungswelle und leiten den Blitzstrom ab (siehe Technisches Heft Nr. 168).
Die äußere Spannungswelle gelangt über die Streukapazitäten zwischen den MS- und NS-Wicklungen in die NSWicklungen des Transformators. Diese Welle, deren Höchstwert nur selten 6 kV übersteigt, erscheint gleichzeitig an allen aktiven Leitern. Die Erdung des Sternpunktes (direkt im Schema TT und TN oder über einen Überspannungsableiter im Schema IT) kann nur die am Sternpunkt auftretende Spannung abschwächen und bewirkt eine innere Überspannung (zwischen Sternpunkt und Phasenleitern). Wenn eine Überspannungsgefahr besteht, wird deshalb dringend empfohlen, unabhängig vom Erdungsschema zwischen allen aktiven Leitern und Erde Überspannungableiter anzuordnen (siehe Technisches Heft Nr. 179). Die Verbindungen müssen möglichst kurz sein:
und tm die Anstiegszeit des Stroms ist. Die Ableitung des Blitzstroms gegen Erde erzeugt im NS-Netz ähnlich wie beim Transformatorüberschlag (siehe Abb. 1) Überspannungen, wobei jedoch infolge der Streukapazitäten innerhalb des Netzes nach und nach eine Abschwächung erfolgt. Es sei daran erinnert, dass für elektrische Betriebsmittel die folgenden vier Bemessungsstossspannungsfestigkeiten definiert sind (Prüfung mit der Wellenform 1,2/50 ms):
1,5 – 2,5 – 4 und 6 kV.
HF-Störungen
Außer den Blitzschlägen erzeugen Radio- und Fernsehsender, Handys und andere Funkgeräte dauernd oder vorübergehend elektromagnetische Felder. Normale oder Kurzschluss- Schaltvorgänge von Schaltgeräten erzeugen elektromagnetische Impuls- Felder. So sind beispielsweise in einem Abstand von 1 m von einer MS-Zelle entfernt Feldstärken von 40 kV/m gemessen worden.
Dauernde, vorübergehende oder Impuls-Felder wirken sich aufgrund des Antennen- oder Schleifeneffektes als Störspannungen aus, die unabhängige elektronische Geräte (wenn deren Unempfindlichkeit ungenügend ist) sowie miteinander verbundene elektronische Systeme, wenn die Schwachstromverbindungen schlecht erstellt sind, stören oder sogar beschädigen können.