Veröffentlicht: 10. Mai 2012
Kategorie: Fachartikel
Koexistenz von Starkstrom und Schwachstrom
Die Elektronik ist heute allgegenwärtig: in den Sensoren, den Aktoren und in den Leitsystemen für Prozesse, für Gebäude und für die Stromverteilung. Diese Ausrüstungen werden vom NSNetz gespeist und dürfen nicht empfindlich gegen die weiter oben genannten Störungen sein. "Seriöse" Hersteller wissen sehr gut, wie sie die Geräte unempfindlich machen können, d.h. wie ihre Empfindlichkeit gegen elektromagnetische Erscheinungen beherrscht werden kann. Hierzu nehmen sie die Normen über die elektromagnetische Verträglichkeit zu Hilfe, zum Beispiel IEC 1000 (siehe Technisches Heft Nr. 149). Parallel dazu zielt die Normung darauf ab, die von den Störern emittierten Störungen auf ein Minimum zu reduzieren. Hierzu sei zum Beispiel die ab 1996 gültige EG-Richtlinie (89/336/ EWG) zur EMV genannt.
Die normierte Koexistenz zwischen Störern und Gestörten ist jedoch insofern nicht geregelt, als auf dem elektrischen Gebiet noch einige Fragen offen stehen:
Minimierung der emittierten Störungen
Wie wir in den vorhergehenden Kapiteln gesehen haben, sind die Störungen mannigfaltig. Sie können vom inneren oder äußeren Modus und nieder- oder hochfrequent sein und durch Leitung oder Strahlung übertragen werden (siehe Tabelle der Abbildung 5). Um sie zu begrenzen, sind verschiedene Lösungen möglich:

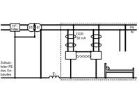
Klicken Sie auf das Bild für eine größere Version
In der MS:
Die normierte Koexistenz zwischen Störern und Gestörten ist jedoch insofern nicht geregelt, als auf dem elektrischen Gebiet noch einige Fragen offen stehen:
- Wie verhält sich eine elektrische Anlage als Störer? Die Art der Realisierung der Anlagen und die Sternpunktbehandlung gehören zu den ausschlaggebenden Punkten.
- Wie können in diesem Rahmen die Störungen und ihre Auswirkungen auf empfindliche (elektronische) Einrichtungen abgeschwächt werden.
Minimierung der emittierten Störungen
Wie wir in den vorhergehenden Kapiteln gesehen haben, sind die Störungen mannigfaltig. Sie können vom inneren oder äußeren Modus und nieder- oder hochfrequent sein und durch Leitung oder Strahlung übertragen werden (siehe Tabelle der Abbildung 5). Um sie zu begrenzen, sind verschiedene Lösungen möglich:

In der MS:
- Verwendung von Zinkoxid- Überspannungsableiter und diese mit möglichst kurzen Verbindungen an einen Erder anschließen, der vom Erder des NS-Sternpunktes getrennt ist, um die Blitzüberspannungen zu begrenzen.
- Begrenzung der MS-Erdschlussstroms und Minimierung des Widerstandes des Erders des NSSternpunktes, um Durchschläge zu vermeiden, wenn mehrere Erder vorhanden sind.
- Verwendung von MS/NS-Transformatoren, deren Schaltung bestimmte Oberwellenströme sperrt, um die Oberwellenstörungen zu begrenzen.
- Den Erder des Sternpunktes möglichst nicht mit demjenigen des Transformators und der Überspannungsableiter verbinden (diese Trennung der Erder wird in Frankreich für die "Stangen"-Stationen der ländlichen Stromversorgung über Freileitungen angewendet).
- Anordnung von Überspannungsableitern an der Einspeisestelle des NSNetzes, die mit möglichst kurzen Verbindungen an den Erder des Sternpunktes angeschlossen sind, um die Blitzüberspannungen zu begrenzen, die durch den Transformator übertragen werden.
- Das Erdungsschema TN-C nicht verwenden, da der PEN-Leiter Oberwellenströme der 3. Ordnung und Mehrfache davon weiterleitet und so die Potentialreferenz stört, die der Schutzleiter PE für die elektronischen Ausrüstungen sein sollte.
- Soweit wie möglich keine Einleiterkabel verwenden, die im Kurzschlussfall ein starkes Magnetfeld erzeugen.
- Den Schutzleiter PE der aktiven Leiter nicht separat führen, sondern besser Mehrleiterkabel mit integriertem Schutzleiter PE verwenden.
- Den Schutzleiter PE möglichst nicht an verschiedenen Stellen an die Metallteile des Gebäudes anschließen, speziell nicht im Schema TN, da der (eventuell mit Oberwellen beladene) hohe Isolationsfehlerstrom störende Wege einschlagen kann (ein Feld von 0,7 A/m stört Bildschirme!).
- Den Einschaltstrom von Kondensatorbatterien möglichst niedrig halten (Widerstände oder Drosseln).
- Im Schema IT, wenn das Netz keine große Ausdehnung hat, eine Impedanz zwischen Sternpunkt und Erde schalten, um das Potential des Sternpunktes an das Erdpotential zu "heften".
- Die Starkstromkabel in metallischen Kabelkanälen führen und auf die Durchschaltung dieser "durchgehenden Masse" und seine Verbindung mit dem Hauptpotentialausgleichsleiter achten (horizontale und vertikale Kabelführungen). Dadurch wird die elektromagnetische Strahlung äußerst minimal gehalten.
- Überspannungen abfangen:
- Durch Anordnung von RC-Schaltungen an den Spulen der Schütze, Relais usw.
- Durch einen Schutz empfindlicher Geräte durch "Überspannungsableiter".