Veröffentlicht: 27. Juni 2012
Kategorie: Fachartikel
Erdungsschemas und kommunizierende elektronische Systeme (KES)
Im vorhergehenden Abschnitt haben wir die Koexistenz zwischen elektrischen Installationen und elektronischen Geräten behandelt. Die Situation wird mit der Entwicklung der digitalen Verbindungen, welche die elektronischen Geräte zu kommunizierenden Leitsystemen vereinigen, komplizierter. Im vorliegenden Kapitel werden wir die Schwierigkeiten detaillierter betrachten, welche die Erdungsschemas der NSNetze den kommunizierenden elektronischen Systemen bieten können.
Vor der Entwicklung der Mikroprozessoren
Oft werden die funktionellen und elektrischen Massen von elektronischen Geräten, die eine elektrische Speisung erfordern, an das Erdungsnetz (PE) angeschlossen, das der Baumstruktur des elektrischen Netzes folgt. NF-Störungen treten in einem Netz durch Kopplung vom Typ der gemeinsamen Impedanz oder durch Induktion (parallele Strompfade mit kleinem Abstand) auf.
Kopplung durch gemeinsame Impedanz
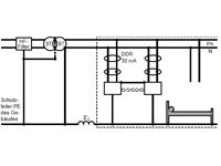
Betrachten wir ein Beispiel: Wenn ein Isolationsfehler das Fließen eines Stroms im Schutzleiter PE zwischen einem Gerät (1) und seinem Messwertgeber (2) bewirkt, tritt zwischen C und D (siehe Abb. 11) ein Spannungsabfall auf. Diese Spannung (u) erscheint auch zwischen (1) und (2) und kann die Signalübertragung stören. Wenn zum Beispiel das Kabel ein Koaxialkabel ist, erscheint die dem Außenleiter aufgeprägte Spannung (U) im inneren Modus in der Verbindung!
Diese Erscheinung ist je nach dem verwendeten Kabeltyp mehr oder weniger stark vorhanden und hängt von seinem "Übertragungswiderstand" im Bereich der betreffenden Frequenz ab.
Vor der Entwicklung der Mikroprozessoren
- verwendeten kommunizierende Systeme analoge Signale (0-10 V, 4-20 mA) usw. niedriger Frequenz,
- waren solche Systeme selten und lokal (Verbindungen zwischen Messwertgebern und Messgeräten),
- waren solche Systeme gegen NFStörungen empfindlich, weshalb der sternförmige Anschluss der Körper, um äußere Kopplungen zu vermeiden.
- Das Vorhandensein von Störungen durch gemeinsame Impedanz infolge von Fehlerströmen im Schutzleiter PE.
- Die Schaffung von weitreichenden Schleifen (mit digitalen Verbindungen), die somit sehr empfänglich für die von den (normale oder parasitäre) Hochfrequenzsignale emittierenden Geräten ausgesendeten Störungen sind.
Oft werden die funktionellen und elektrischen Massen von elektronischen Geräten, die eine elektrische Speisung erfordern, an das Erdungsnetz (PE) angeschlossen, das der Baumstruktur des elektrischen Netzes folgt. NF-Störungen treten in einem Netz durch Kopplung vom Typ der gemeinsamen Impedanz oder durch Induktion (parallele Strompfade mit kleinem Abstand) auf.
Kopplung durch gemeinsame Impedanz
Betrachten wir ein Beispiel: Wenn ein Isolationsfehler das Fließen eines Stroms im Schutzleiter PE zwischen einem Gerät (1) und seinem Messwertgeber (2) bewirkt, tritt zwischen C und D (siehe Abb. 11) ein Spannungsabfall auf. Diese Spannung (u) erscheint auch zwischen (1) und (2) und kann die Signalübertragung stören. Wenn zum Beispiel das Kabel ein Koaxialkabel ist, erscheint die dem Außenleiter aufgeprägte Spannung (U) im inneren Modus in der Verbindung!
Diese Erscheinung ist je nach dem verwendeten Kabeltyp mehr oder weniger stark vorhanden und hängt von seinem "Übertragungswiderstand" im Bereich der betreffenden Frequenz ab.
Im Schema TN-C bewirken die im Neutralleiter und somit im PEN-Leiter fließenden Ströme eine starke Variation der Potentialreferenz der einzelnen Geräte der KES. Dieses Erdungsschema eignet sich nicht, dies umso weniger, als Oberwellenströme im Neutralleiter fliessen, es sei denn das Massensystem werden vollständig vom Erdungssystem getrennt.
Im Schema TN-S, jedoch auch im Schema TN-C, bewirken Isolationsfehler Kurzschlussströme (mit hohem di/dt) im Schutzleiter PE, welche
Im Schema TT ist klar, dass, wenn die kommunizierenden Systeme an verschiedene Erder angeschlossen sind, die Potentialausgleichsprobleme gleich groß sind wie beim Schema TN. Somit verlangt ein kommunizierendes System einen einzigen Erder der Anwendungen. In diesem Fall bewirken Isolationsfehler Fehlerströme von rund 20 A im Schutzleiter PE, die (im Vergleich zu den 20 kA im Schema TN) wenig stören.
Die Lösungen, um das Auftreten dieser Störungen zwischen kommunizierenden Geräten zu verhindern, besteht darin:
(induktives Nebensprechen) Es sei daran erinnert, dass aufgrund der Gesetze des Elektromagnetismus jeder in einem Leiter fliessende Strom ein Magnetfeld erzeugt. Wenn dieses Feld variabel ist, bewirkt es eine Flussänderung und somit eine Störspannung in einer in der Nähe angeordneten Schleife. Um das Auftreten eines Magnetfeldes zu verhindern:
Im Schema TN-S, jedoch auch im Schema TN-C, bewirken Isolationsfehler Kurzschlussströme (mit hohem di/dt) im Schutzleiter PE, welche
- die Potentialreferenz der KES verändern (siehe vorhergehendes Beispiel),
- das Fliessen von Störströmen in den Metallteilen des Gebäudes bewirken können (weshalb die Metallteile an die Haupterdungsklemme angeschlossen werden sollten, und nicht an verschiedenen Stellen an das Erdungsnetz).
Im Schema TT ist klar, dass, wenn die kommunizierenden Systeme an verschiedene Erder angeschlossen sind, die Potentialausgleichsprobleme gleich groß sind wie beim Schema TN. Somit verlangt ein kommunizierendes System einen einzigen Erder der Anwendungen. In diesem Fall bewirken Isolationsfehler Fehlerströme von rund 20 A im Schutzleiter PE, die (im Vergleich zu den 20 kA im Schema TN) wenig stören.
Die Lösungen, um das Auftreten dieser Störungen zwischen kommunizierenden Geräten zu verhindern, besteht darin:
- Erdungsschemas zu vermeiden, die im Schutzleiter PE einen hohen Strom fließen lassen;
- Die Massen der Elektronik von den elektrischen Massen zu trennen (und somit wenn nötig Trenntransformatoren zu verwenden).
- Betriebsmittel der Klasse II zu verwenden, wodurch sich ein Anschluss an den Schutzleiter PE erübrigt;
- Mehrere Erder (in TT und in IT) zu vermeiden, wenn die Gefahr von vagabundierenden Erdströmen besteht.
(induktives Nebensprechen) Es sei daran erinnert, dass aufgrund der Gesetze des Elektromagnetismus jeder in einem Leiter fliessende Strom ein Magnetfeld erzeugt. Wenn dieses Feld variabel ist, bewirkt es eine Flussänderung und somit eine Störspannung in einer in der Nähe angeordneten Schleife. Um das Auftreten eines Magnetfeldes zu verhindern:
- Müssen sich die aktiven Leiter und der Schutzleiter PE im gleichen Kabel befinden (die von den einzelnen Leitern erzeugten Felder heben sich gegenseitig auf). Dabei darf nicht vergessen werden, dass im Schema TN die typischen Werte der Isolationsfehlerströme Di » 50 kA und Dt » 5 ms betragen;
- Wird davon abgeraten, den Metallteilen zu gestatten, sich am Rückstromkreis zu beteiligen, denn andernfalls ist die Vektorsumme der Ströme im Kabel nicht gleich null.
- Müssen parallele Führungen in kleinem Abstand von Starkstromleitern mit hohem di/dt (Erdungsleiter eines Blitzableiters, Schutzleiter) und Schwachstromverbindungen vermieden werden;
- Müssen für Schwachstrom Verbindungen aus verdrillten Aderpaaren verwendet werden (die in aufeinander folgenden Schleifen induzierten Spannungen heben sich gegenseitig auf).